Ngôi nhà cũ xuống cấp trong hẻm tại TPHCM "lột xác" ngỡ ngàng sau cải tạo
(Dân trí) - Trước khi được cải tạo, ngôi nhà phố này khá cũ kỹ và xuống cấp, lại nằm trong một con hẻm nhỏ ồn ào, không đáp ứng nhu cầu sống hiện đại của gia chủ.
Theo một thống kê chính thức vào năm 2020, nhà phố chiếm hơn 88% trong tổng số 1,92 triệu căn nhà tại TPHCM. Tuy nhiên, nhiều ngôi nhà phố đã lỗi thời và xuống cấp không đáp ứng được lối sống hiện đại và mức sống ngày càng cao của các thế hệ tiếp theo. Do đó, việc cải tạo những ngôi nhà cũ kỹ này để đáp ứng tốt hơn nhu cầu sống hiện đại đã trở thành một công việc đầy thách thức song cũng đầy cảm hứng đối với nhiều kiến trúc sư.
Dự án cải tạo dưới đây là một ngôi nhà phố nhỏ ở TPHCM với tuổi đời 15 năm tuổi, nằm trong một con hẻm nhỏ tại một khu dân cư có mật độ đông đúc. Dự án được thực hiện trên tổng diện tích 160 m2 và đã được hoàn thành vào năm nay. Sau cải tạo ngôi nhà đã "lột xác" ngoạn mục trở nên tươi mới và hiện đại.



Trước khi được cải tạo, ngôi nhà khá cũ và xuống cấp, với thiết kế lỗi thời như cầu thang bê tông cồng kềnh nằm ở trung tâm, bếp và phòng ngủ tối và không thông thoáng, trong khi sân thượng đầy bụi bặm và gần như bị bỏ hoang lâu ngày.
Bên cạnh đó, vị trí của ngôi nhà là nằm trong một con hẻm nhỏ 3 m nhưng có mật độ dân cư đông đúc và thường xuyên trong tình trạng ồn ào vì lượng xe qua lại nhiều do đây là lối tắt nối liền 2 con đường chính.

Do kinh phí eo hẹp nên bài toán đặt ra cho đội ngũ thiết kế và xây dựng là vừa phải đáp ứng được nhu cầu sống mới vừa phải giữ nguyên cấu trúc chính của ngôi nhà.
Vì vậy, bản phác thảo thiết kế đặt ra yêu cầu phải tân trang ngôi nhà theo hướng nghệ thuật và hiện đại nhằm tạo sự thoải mái và đảm bảo đủ ánh sáng và thông gió tự nhiên, giảm thiểu tác động của tiếng ồn cũng như nâng cao sự riêng tư và an ninh cho không gian sống bên trong.

Ý tưởng thiết kế kiến trúc và nội thất dựa trên 2 cách tiếp cận: sắp xếp và cải tạo toàn bộ không gian bên trong và tạo cấu trúc giống như chiếc lồng độc đáo với các khu vực trồng cây xanh ở ngoài mặt tiền.

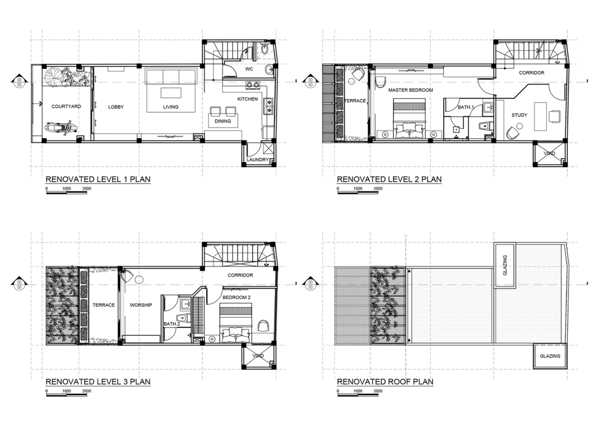
Đầu tiên, cầu thang bê tông ở giữa trung tâm ngôi nhà được thay thế bằng cầu thang có trọng lượng nhẹ làm bằng khung sắt được đặt làm riêng, các bậc thang được lát bằng gỗ, khoảng trống ở giữa các bậc làm bằng kính. Để lấy ánh sáng cho khu vực nhà bếp và phòng ăn phía sau, các kiến trúc sư đã khoét một khoảng trống nhỏ ở phía sau nhà. Còn phía trước nhà là không gian phòng khách kết hợp với sảnh chính và sân.


Phòng ngủ chính và phòng tắm được dời sang khu vực phía trước của tầng 2 và được hoàn thiện bằng tường kính, sàn gỗ laminate và gạch đen. Thư viện, góc học tập của gia đình được bố trí phía sau với ánh sáng được lấy qua giếng trời. Tầng 3 có khoảng lùi 2 m nhưng vẫn đủ rộng để bố trí gọn gàng phòng ngủ thứ 2, phòng vệ sinh chung và khu thờ cúng.



Toàn bộ mặt tiền cũ kỹ và xuống cấp đã được gọt đẽo cẩn thận từng mảng rồi gắn lồng sắt 2 bậc. Hai sân thượng lớn được bố trí nhiều cây cảnh tạo thành khu vườn xanh mát ngay sau mặt tiền bằng kim loại.


Khu vườn này không chỉ làm giảm hiệu quả tiếng ồn từ dòng xe cộ đông đúc bên dưới, mà còn nâng cao đáng kể sự riêng tư và an ninh cho các không gian bên trong. Hơn nữa, đây còn được coi là vùng đệm xanh quan trọng, kéo các chủ nhân trẻ đến gần hơn với thiên nhiên tươi mát mỗi ngày, góp phần làm đẹp cảnh quan đường phố đô thị.
Nhật Linh
Theo Arch Daily
























