Chiêm ngưỡng biệt thự vườn đẹp như mơ của cặp vợ chồng trẻ Hà Nội

(Dân trí) - Căn biệt thự vườn của cặp vợ chồng trẻ Hà Nội được thiết kế hòa hợp giữa không gian sống và thiên nhiên, cây cối.

Nằm trong khu đô thị Ecopark cách trung tâm Hà Nội gần 30 km, ngôi nhà “sọc dọc” nổi bật bởi kiến trúc hiện đại với không gian sân vườn thoáng đãng. Bên trong căn nhà, kiến trúc cũng được chủ nhân tinh chỉnh, thiết kế để hòa hợp với thiên nhiên.

Chiêm ngưỡng biệt thự vườn đẹp như mơ của cặp vợ chồng trẻ Hà Nội - 1

Theo tiết lộ của kiến trúc sư Trần Hữu Thọ, chủ nhân căn nhà là đôi vợ chồng trẻ, chán cuộc sống chật chội nơi phố thị, vì vậy đã chọn mua một căn hộ 78 m2, 3 tầng tại khu đô thị Ecopark (phía Đông Hà Nội) để hưởng thụ cuộc sống gần gũi với thiên nhiên.

Chiêm ngưỡng biệt thự vườn đẹp như mơ của cặp vợ chồng trẻ Hà Nội - 2

Để đảm bảo sự đồng bộ với quy hoạch chung, mặt ngoài của ngôi nhà vẫn giữ nguyên thiết kế của chủ đầu tư.

Chiêm ngưỡng biệt thự vườn đẹp như mơ của cặp vợ chồng trẻ Hà Nội - 3
Trong khi đó, không gian bên trong được thiết kế mới hoàn toàn, pha trộn giữa kiến trúc hiện đại với các yếu tố truyền thống Việt Nam.
Chiêm ngưỡng biệt thự vườn đẹp như mơ của cặp vợ chồng trẻ Hà Nội - 4
Theo kiến trúc sư Trần Hữu Thọ, về giải pháp không gian, ngôi nhà sẽ được mở rộng tối đa không gian, kết hợp với các yếu tố tự nhiên như cây cối, sân vườn.
Chiêm ngưỡng biệt thự vườn đẹp như mơ của cặp vợ chồng trẻ Hà Nội - 5
Để làm được điều đó, hệ thống tường bao ở cả 3 tầng sẽ được phá bỏ, nhằm xóa nhòa ranh giới giữa bên trong và bên ngoài.
Chiêm ngưỡng biệt thự vườn đẹp như mơ của cặp vợ chồng trẻ Hà Nội - 6

Không quá lạm dụng các họa tiết trang trí, ngôi nhà chỉ sử dụng các dạng hình khối (hình vuông, hình chữ nhật) để tạo điểm nhấn.

Chiêm ngưỡng biệt thự vườn đẹp như mơ của cặp vợ chồng trẻ Hà Nội - 7
Kiến trúc sư Trần Hữu Thọ cho biết, ngôi nhà sử dụng các vật liệu tự nhiên thô truyền thống như đá ong xám và gỗ tự nhiên lau dầu với màu sắc nguyên bản. Màu xám của đá ong cùng với màu nền đen khi phối hợp cùng màu gỗ tự nhiên tạo ra sự tương phản mạnh làm nổi bật các vật thể nội thất.
Chiêm ngưỡng biệt thự vườn đẹp như mơ của cặp vợ chồng trẻ Hà Nội - 8
Một số chất liệu tự nhiên khác như mây, vải thô tạo ra chất cảm mềm mại cho ngôi nhà. Cầu thang được thiết kế các bậc thoáng tạo ra cảm giác rỗng, mở từ dưới lên trên.
Chiêm ngưỡng biệt thự vườn đẹp như mơ của cặp vợ chồng trẻ Hà Nội - 9
Khu vực phòng ngủ lớn được làm mới bằng gỗ mô phỏng hình dáng của rừng đước, yếu tố này được lặp lại xuyên suốt ở cửa ra vào, các hệ cánh tủ, đầu giường, nhà vệ sinh.
Chiêm ngưỡng biệt thự vườn đẹp như mơ của cặp vợ chồng trẻ Hà Nội - 10
Ngoài các màu sắc tự nhiên mang tính chủ đạo như màu xám, màu gỗ, ngôi nhà cũng được điểm xuyết bởi một số màu sắc như màu xanh cổ vịt, màu cam làm cho không gian tươi mới, tràn đầy sức sống.
Chiêm ngưỡng biệt thự vườn đẹp như mơ của cặp vợ chồng trẻ Hà Nội - 11
Được biết, thời gian thiết kế là 3 tháng, thời gian thi công là 4,5 tháng.
Chiêm ngưỡng biệt thự vườn đẹp như mơ của cặp vợ chồng trẻ Hà Nội - 12

Bể cá Koi được đặt bên trong khu vườn.

Chiêm ngưỡng biệt thự vườn đẹp như mơ của cặp vợ chồng trẻ Hà Nội - 13
Mặt bằng tầng 1
Chiêm ngưỡng biệt thự vườn đẹp như mơ của cặp vợ chồng trẻ Hà Nội - 14
Mặt bằng tầng 2
Chiêm ngưỡng biệt thự vườn đẹp như mơ của cặp vợ chồng trẻ Hà Nội - 15
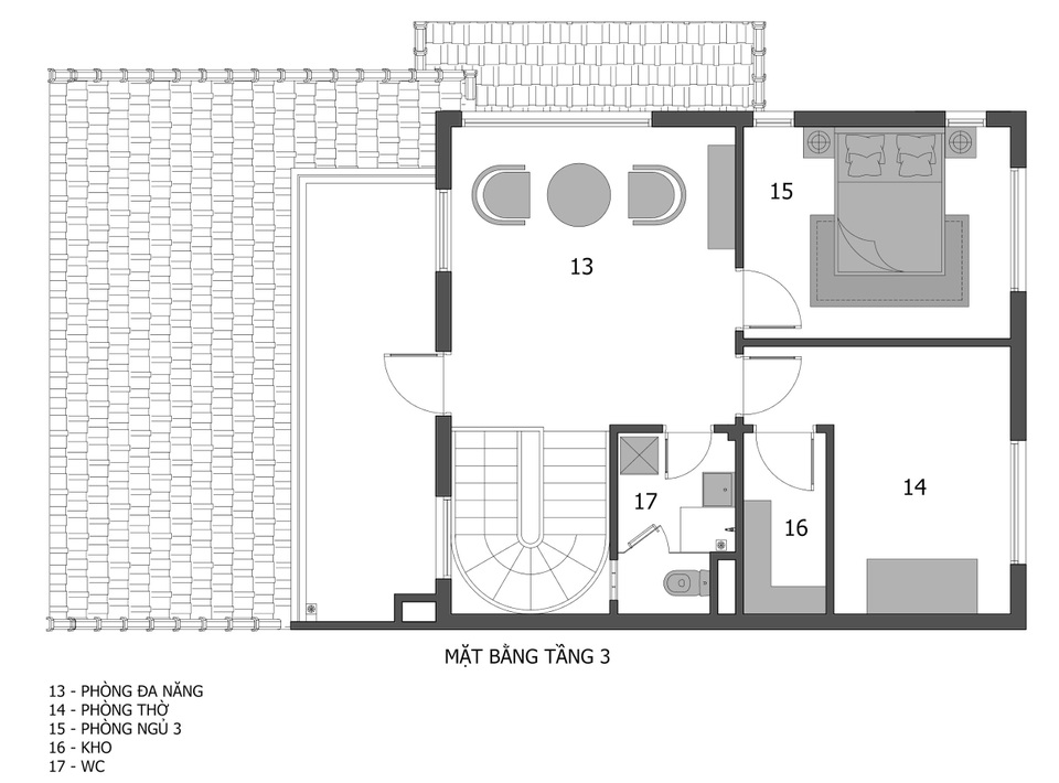
Mặt bằng tầng 3

Việt Vũ

Ảnh: Nguyễn Thái Thạch